Porzione di bifamiliare in vendita

Viterbo, Str. Case Nuove - Canale
€ 169.000
4 locali 4 locali
150 Mq 150 Mq
2 bagni 2 bagni

Porzione di bifamiliare in vendita

Viterbo, Str. Case Nuove - Canale

Descrizione annuncio

Nella campagna di San Martino al Cimino in posizione dominante proponiamo in vendita porzione di bifamiliare divisa in verticale con ingresso indipendente.

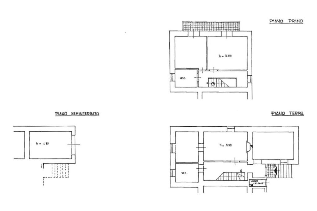
L'immobile che si sviluppa su due livelli abitativi in totale di 100 mq dispone anche di una rimessa di 15 mq, una taverna di 30 mq e un magazzino di 15 mq.

Il piano di ingresso è rialzato ed è così composto: disimpegno, cucina spaziosa e vivibile, soggiorno, cameretta e bagno finestrato con box doccia. Questo livello è stato ristrutturato nel 2009.

Il piano superiore ed ultimo è destinato alla zona notte in cui troviamo: camera matrimoniale di generosa metratura con accesso sul balcone, cameretta con anch'essa uscita sullo spazio esterno e bagno finestrato con vasca. Dal terrazzino si può ammirare una vista unica sul verde, su Viterbo e Montefiascone fino ad arrivare al mare. Questo livello necessita una ristrutturazione riguardante impianti ed infissi.

L'area verde che circonda la villa è di 2000 mq ed è parzialmente recintata. Risulta quindi gestibile e ideale se si hanno animali o se si ha voglia di avviare piccole coltivazioni.

La taverna posta a lato della villetta fronte il giardino è stata ristrutturata nel 2020 in chiave rustica. Dispone di un camino e accesso alla cantina. Questo diventerà il luogo ideale per cene, feste e momenti di relax con famigliari ed amici.

Il garage è adatto alla rimessa di moto, bici o una piccola utilitaria.

La proprietà è servita dall'acquedotto comunale, dotata di fossa biologica, stufa a pellet per il sistema di riscaldamento e bombola per cucinare.

E' la casa che fa per te se cerchi una villetta semi indipendente, parzialmente pronta all'uso con la possibilità di personalizzarla e rimodernarla a tuo piacere. Tutto questo a 10 minuti di auto da Viterbo e 5 dal centro di San Martino al cimino.

Mostra tutto

Nelle vicinanze

Bar Bar
Sunday Bar
1,4 Km
Ristoranti Ristoranti
Osteria del Santo
1,6 Km
Mostra tutto

Caratteristiche

Rif.:
61131109
Piano:
2 di 2 (Piano terra con giardino)
Box:
1
Balconi:
1
Camere da letto:
3
Arredamento:
Assente
Mostra tutto
Prezzo Prezzo
€ 169.000
Rata mutuo Rata mutuo
€ 798 / mese
Spese annue Spese annue
€ 0
Proponi il tuo prezzoProponi il tuo prezzo

Classe Energetica

G
G
G
G
G
G
G
G
G
EP globale non rinnovabile:
175.00 kW h/m² anno
EP globale rinnovabile:
0.00 kW h/m² anno
EP invernale del fabbricato:
EP estiva del fabbricato:
Anno di costruzione:
1960
Riscaldamento:
Autonomo
Tipo impianto:
A stufa
Tipo alimentazione:
Aria

Ti interessa visionare l'immobile?

Fissa un appuntamento  Fissa un appuntamento

Richiedi informazioni

Clicca su Leggi per aprire l'informativa
* Questi campi sono obbligatori

Calcola il tuo mutuo

Semplice e senza impegno
Anticipo

( % )
Mutuo

( % )

pochi semplici passi

inserisci i tuoi dati
Questionario completato
Grazie per aver richiesto un appuntamento senza impegno con un nostro Consulente del Credito e Assicurativo.

Hai inserito correttamente tutti i dati necessari e a breve riceverai una e-mail con un link da convalidare per inviare i tuoi dati.
Affiliato
Cassia Sud Srl
Via Santa Maria in Gradi, 1/3 01100 Viterbo (VT)

Il nostro staff


  • Paolo Mecocci
    Affiliato

  • Emanuele Pagliazzi
    Responsabile

  • Sophia Aru
    Collaboratrice

  • Lorenzo Ravarotto
    Collaboratore

  • Ludovico Maria Santini
    Responsabile

  • Francesco Aitoro
    Collaboratore

  • Mario Torelli
    Collaboratore

  • Jessica Zucchetti
    Coordinatrice
Via Santa Maria in Gradi, 1/3 01100 Viterbo (VT)
Zona: Viterbo Grotticella-Pietrare - San Martino
Mostra su mappa
Orari: L'agenzia è aperta dal lunedì al venerdì dalle 9:00 alle 13:00 e dalle 15:00 alle 19:30, il sabato dalle 9:00 alle 17:00.
Affiliato
Cassia Sud Srl
Via Santa Maria in Gradi, 1/3 01100 Viterbo (VT)

2025 Tecnocasa Franchising S.p.A. - P. IVA 08365160152 - Via Monte Bianco 60/A 20089 Rozzano (MI). Ogni agenzia ha un proprio titolare ed è autonoma. Privacy policy | Policy utilizzo | Cookie policy