Casa semindipendente in vendita

Viterbo, Strada Chiesa Nuova - San Martino Al Cimino
€ 69.000
3 locali 3 locali
80 Mq 80 Mq
1 bagno 1 bagno

Casa semindipendente in vendita

Viterbo, Strada Chiesa Nuova - San Martino Al Cimino

Descrizione annuncio

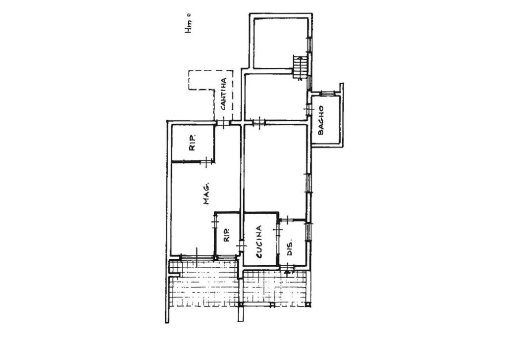
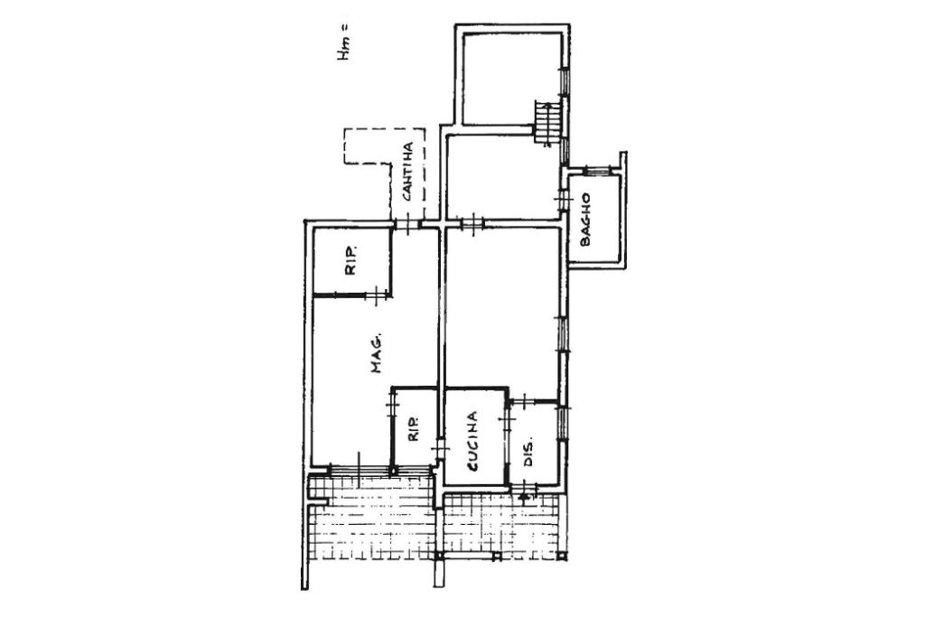
Nella campagna di San Martino al Cimino proponiamo in vendita porzione di casa indipendente posta al piano terra con 200 mq di giardinetto.

Si accede alla proprietà tramite un cancello comune con le altre abitazioni. Per maggiore privacy ed acquisire più spazio è possibile acquistare a 10.000,00 € il ricovero agricolo fronte l'immobile con 4.000 mq di terreno.

Un piccolo portico ci conduce all'ingresso della soluzione di complessivi 75 mq dove troviamo il tinello, un bel soggiorno con termocamino, una camera matrimoniale con bagno all'interno e un ulteriore camera sopraelevata di buone dimensioni.

Completano la proprietà un magazzino e una cantina fruibili anche come garage dalla quale poter accede sia esternamente che dall'interno passando dal tinello.

L'immobile necessita di una ristrutturazione e di un ammodernamento generale fatta eccezione degli infissi che sono stati sostituiti cinque anni fa. E' servito dall'acquedotto comunale, dotato di fossa biologica e termocamino per il sistema di riscaldamento.

E' la soluzione ideale per chi ama la natura a pochi passi dal primo centro abitato.

LE IMMAGINI GENERATE CON L'INTELLIGENZA ARTIFICIALE SONO ESCLUSIVAMENTE A SCOPO ILLUSTRATIVO PER IMMAGINARE AL MEGLIO GLI SPAZI A SEGUITO DI UNA RISTRUTTURAZIONE.



Mostra tutto

Nelle vicinanze

Bar Bar
Sunday Bar
960 m
Ristoranti Ristoranti
Osteria del Santo
1,1 Km
Mostra tutto

Caratteristiche

Rif.:
61125771
Piano:
Terra con giardino di 1
Totale piani:
1
Camere da letto:
2
Arredamento:
Assente
Condizionamento:
Assente
Mostra tutto
Prezzo Prezzo
€ 69.000
Rata mutuo Rata mutuo
€ 326 / mese
Spese annue Spese annue
€ 0
Proponi il tuo prezzoProponi il tuo prezzo

Classe Energetica

G
G
G
G
G
G
G
G
G
EP globale non rinnovabile:
337.81 kW h/m² anno
EP globale rinnovabile:
0.00 kW h/m² anno
EP invernale del fabbricato:
EP estiva del fabbricato:
Anno di costruzione:
1965
Riscaldamento:
Autonomo
Tipo impianto:
A radiatori
Tipo alimentazione:
Altro

Ti interessa visionare l'immobile?

Fissa un appuntamento  Fissa un appuntamento

Richiedi informazioni

Clicca su Leggi per aprire l'informativa
* Questi campi sono obbligatori

Calcola il tuo mutuo

Semplice e senza impegno
Anticipo

( % )
Mutuo

( % )

pochi semplici passi

inserisci i tuoi dati
Questionario completato
Grazie per aver richiesto un appuntamento senza impegno con un nostro Consulente del Credito e Assicurativo.

Hai inserito correttamente tutti i dati necessari e a breve riceverai una e-mail con un link da convalidare per inviare i tuoi dati.
Affiliato
Cassia Sud Srl
Via Santa Maria in Gradi, 1/3 01100 Viterbo (VT)

Il nostro staff


  • Paolo Mecocci
    Affiliato

  • Emanuele Pagliazzi
    Responsabile

  • Sophia Aru
    Collaboratrice

  • Lorenzo Ravarotto
    Collaboratore

  • Ludovico Maria Santini
    Responsabile

  • Francesco Aitoro
    Collaboratore

  • Mario Torelli
    Collaboratore

  • Jessica Zucchetti
    Coordinatrice
Via Santa Maria in Gradi, 1/3 01100 Viterbo (VT)
Zona: Viterbo Grotticella-Pietrare - San Martino
Mostra su mappa
Orari: L'agenzia è aperta dal lunedì al venerdì dalle 9:00 alle 13:00 e dalle 15:00 alle 19:30, il sabato dalle 9:00 alle 17:00.
Affiliato
Cassia Sud Srl
Via Santa Maria in Gradi, 1/3 01100 Viterbo (VT)

2025 Tecnocasa Franchising S.p.A. - P. IVA 08365160152 - Via Monte Bianco 60/A 20089 Rozzano (MI). Ogni agenzia ha un proprio titolare ed è autonoma. Privacy policy | Policy utilizzo | Cookie policy